1. Bauen mit Isowood Planung
Die Planungsphase

Wie alles anfing
Zum Ende meines aktiven Arbeitslebens entstand die Idee noch einmal zu bauen. Zum Einen wollten wir näher an meine Heimat (Saarbrücken) und unserem Lieblingsverein 1.FC Saarbrücken kommen, zum Anderen wollte ich mal genauso bauen wie ich es immer immer erträumt hatte. Klar war, wenn das nicht möglich wäre lassen wir es sein.
Grundstücksuche
Hatten wir uns einfacher vorgestellt. Vielleicht wollten wir auch zuviel. Für unser Wohnmobil sollte eine Abstellmöglichkeit her, da über 3m Höhe, ausserhalb des 3m Grenzabstandes. Das bedeutet 10m Hausbreite, 4 m für das Wohnmobil und 6m Abstandsflächen eine Strassenbreite von mindestens 20m. Dann wurde die Auswahl schon sehr mau.
An der Mosel fanden wir nur passende Grundstücke, die bereits im Bebauungsplan als Hochwassergebiet ausgewiesen waren. Andere waren so schmal geschnitten dass man die Zimmer nur hintereinander hätte anlegen können :-) Oder die Hanglage war so extrem dass man nur mehrgeschossig hätte bauen können. Das Extrem war ein Grundstück dass man nur mit Steigeisen betreten hätte können. Kurzum das war wohl nix.
Aber wir wollten ja ehh näher an Saarbrücken. Aber im Saarland sind bezahlbare Baugrundstücke noch rarer gesäht, unter den o.g. Bedingungen schon garnicht. Im Norden des Saarlandes fanden wir schließlich eins, alles war toll.
Trotzden war ich mißtrauisch und bat einen Isowood Bauleiter das Grundstück anzuschauen. Der war so garnicht begeistert und hatte Zweifel ob die LKW's die Steigung zum Bauplatz meistern könnten. Man kam dann auf die Idee die Hauptstraße zu sperren. Fand ich schwierig.
Im Übrigen stehen die Grundstücke noch immer zum Verkauf. War also wohl die richtige Entscheidung dort nicht zu kaufen.
Suche nach einer Fertighaus Firma
Das ist jetzt keine Chronologie, da die Suche nach einem Fertighausbauer schon lange vor der Grundstücksuche begann. Es war von vorhinein klar, dass wenn überhaupt, nur Holz als Baustoff in Frage kam. Ich bin kein Klimaaktivist, aber die Wahl durch den Hausbau CO2 in die Atmosphäre zu setzen (Beton) oder CO2 dauerhaft aus der Atmosphäre zu holen, war für mich zugunsten Holz ausschlaggebend.
Die Suche begann auf der Fertighausausstellung Köln. Es war der Sommer als die Aussentemperaturen dauerhaft weit über 30Grad lagen.
Hier konnten wir unsere erste Lektion lernen. Jedes Fertighaus kann mehr oder weniger die Wärme im Haus konservieren. Aber die Hitze draußen zu halten ist bedeutend anspruchsvoller.
Das nennt sich Phasenverschiebung. In manchen Häusern war es unerträglich heiß. Die Luft konnte man schneiden. Im Nachinein habe ich herausgefunden, dass dort die verwendete Isolierung aus Styropor, und, oder Mineralwolle bestand.
Anders bei Isowood und einigen anderen Herstellern. Die waren jedoch für uns nicht finanzierbar. Auch bei unserem zweiten Besuch dieselbe Situation. Das Raumklima im Isowoodhaus war sehr angenehm. Ich begann eine Diskussion dass hier eine Klimaanlage in Betrieb war. Der Verkäufer erklärte mir jedoch jedes Detail der Heizungsanlage um den Beweis anzutreten dass das angenehme Raumklima auf die Isowood Isolierung zurückzuführen war.
https://isowoodhaus.de/isowoodhaus-wandaufbau/
Das gab im Endeffekt den Ausschlag für Isowood
Planung des Hauses
wie bereits geschrieben war es für uns klar entweder wir bauen entsprechend unserer Wünsche oder gar nicht. Als das wäre:
Wohn- Esszimmer, Küche, firsthoch offen
offene Küche mit Kochinsel
große Terrasse mit Kaltwintergarten
großer Hobbyraum für meine Modelleisenbahn, dieser kann nach meinem Ableben in 2 Kinderzimmer umgewandelt werden
Wir wollten die Wohnräume im ersten OG haben, die Schlafräume jedoch im EG. Dies hatte mehrere Gründe.
Zum Ersten: Wärme steigt nach oben. Somit sollten die Schlafräume kühl und die Wohnräume warm sein. Wir hoffen dass das so sein wird.
Zum Zweiten: Durch die große Dachterrasse haben wir vor dem Wohnraum eine super Aussicht über das Tal hinweg.
Unter der Terrasse ist Platz für unser Wohnmobil.
Der große Vorteil in der Arbeit mit Isowood ist dass es keine Beschränkungen bei der Planung gibt. Bei anderen Fertighausherstellern wurde oft versucht unsere Planung aus Kostengründen in irgendwelche Module hineinzuzwängen.


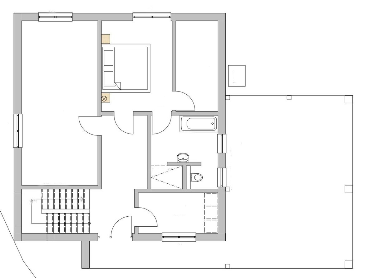
Im EG befindet sich auf der rechten Seite der Technikraum, darüber das Schlafzimmer Ankleide und Badezimmer. Links mein Hobbyraum ;-)
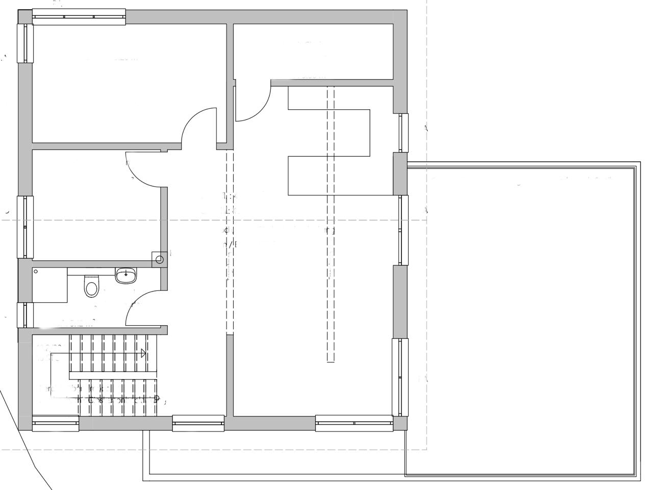
Im Obergeschoss liegt das große Wohn-, Eßzimmer und offene Küche. Dieses hat 2 Zierbalken unter der Decke. Eine Speisekammer ist an die Küche angeschlossen. Rechts davon die Terrasse mit einer Terrassenüberdachung auf 4x3m.
Links über dem Treppenhaus befindet sich ein WC mit Dusche, darüber das Gästezimmer und das recht großzügige Arbeitszimmer.
Vertrag

Am 11.11.2024 war es dann soweit. Der Bauvertrag wurde im Fertighauszentrum Köln unterschrieben. Dickes Kompliment an den dortigen Verkäufer. Dadurch dass er Architekt ist hat er bereits zu diesem Zeitpunkt viel Know How in das Haus eingebracht.
Der erste Plan war noch für ein anderes Grundstück vorgesehen. Da die Gemeinde jedoch mit der Erschließung nicht fertig wurde und wir immer wieder vertröstet wurden kam Plan B zur Ausführung. Wir konnten jedoch den vorbereiteten Plan gespiegelt umsetzen. Im Nachhinein gefällt uns das finale Grundstück sogar besser.